
Carmichael Enhanced Kitchen Remodel
Carmichael, CA
Timeline
12 Weeks
Location
Carmichael, CA
Budget
$38,420
Completed
February 2024
Overview
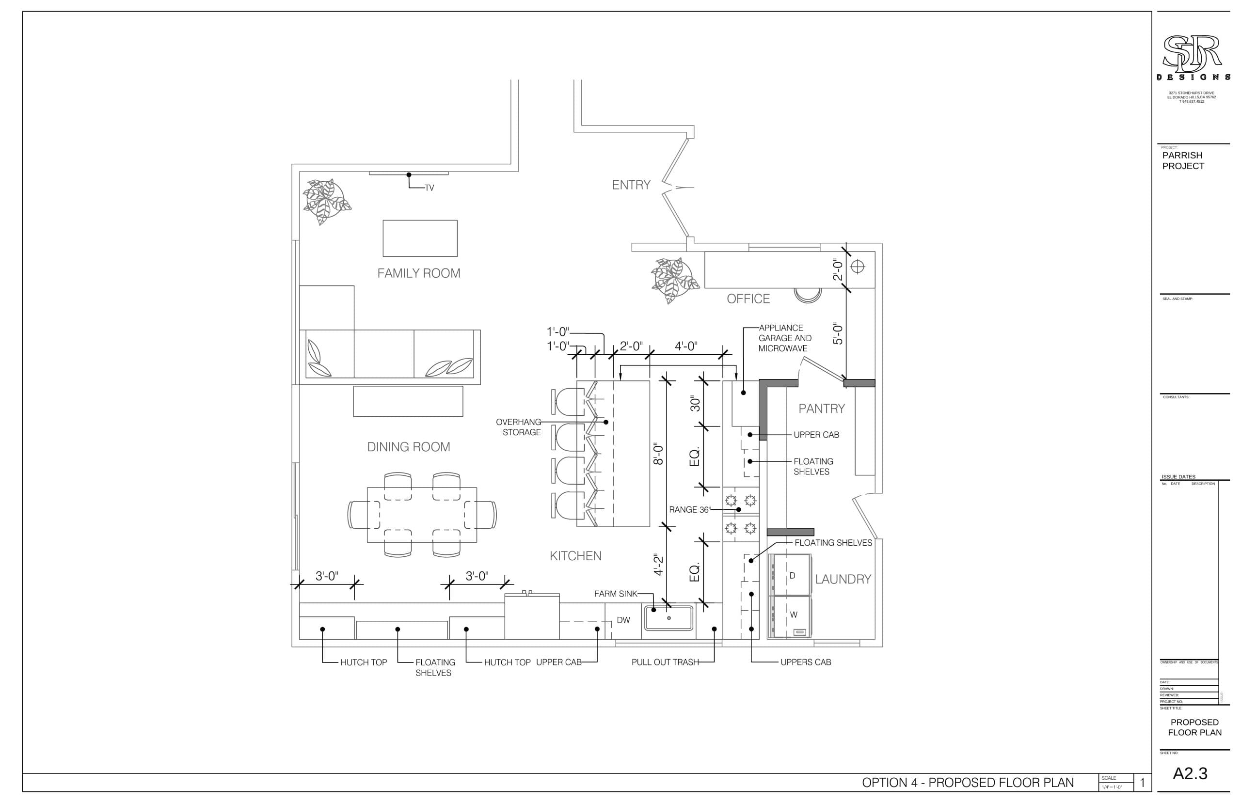
When the homeowners purchased this Carmichael home, the kitchen still reflected an earlier era of design. Tile countertops, golden oak cabinetry, popcorn ceilings, and a mix of wall textures left the space feeling dated and disconnected from the rest of the home. Decorative soffits above the cabinets and a peninsula-style layout also limited both circulation and seating.
This project ultimately fell into our Enhanced Kitchen Remodel tier, though the scope pushed close to what we typically consider a Custom Kitchen Redesign. The plan involved a full demolition, a structural modification to open the space, and a completely reworked layout designed to improve both function and flow.
With a carefully managed project budget of $38,420, the goal was to deliver a kitchen that felt open, modern, and highly functional—while making thoughtful decisions about where to invest in design, materials, and structural improvements.
The Vision

Key Features
- Load-bearing wall modification to open the kitchen to the main living space
- Central island replacing the original peninsula for improved flow and seating
- Custom micro-shaker cabinetry by Case1 Inc. with mixed finishes
- Quartz countertops with full-height backsplash tile from Tilebar
- Apron-front Bocchi workstation sink with Delta Touch2O faucet
- Layered lighting design including recessed, under-cabinet, and pendant lighting
The Transformation
Opening Up the Space
When the homeowners purchased this Carmichael property, the kitchen still reflected an earlier era of design. Tile countertops, golden oak cabinets, popcorn ceilings, and decorative soffits created a space that felt closed off and dated. The peninsula layout also limited both circulation and seating.
The remodel began with a full demolition, removing every outdated element and creating a blank slate. One of the most impactful changes involved modifying a load-bearing wall, allowing the kitchen to open into the surrounding living area and dramatically improving the sense of space.
BeforeThe original load-bearing wall in place
AfterThe load-bearing wall condensed to open up space
The Cabinetry
Custom cabinetry was built locally by Case1 Inc. of Sacramento using a clean micro-shaker door style that bridges modern and classic design.
To create visual contrast and warmth, the cabinetry features a mixed finish approach:
-
Perimeter cabinets: Painted SW Chantilly Lace
-
Island cabinets: Gray-stained white oak
Storage was significantly expanded compared to the original kitchen. The island provides additional cabinetry and workspace, while the perimeter cabinets incorporate a dedicated appliance garage with a built-in microwave area to keep everyday appliances accessible but out of sight.
BeforeThe original golden oak cabinets
AfterThe microshaker perimeter cabinets in Chantilly Lace
The Appliances
The kitchen was outfitted with a suite of Samsung smart appliances in Black Stainless Steel, creating a sleek and cohesive appearance.
Appliance selections include:
-
Samsung BESPOKE 29 cu. ft. 4-Door Flex Refrigerator with customizable matte black steel panels
-
Samsung StormWash Dishwasher (42 dBA) for quiet performance
-
Samsung Smart Slide-In Electric Range (6.3 cu. ft.)
-
Samsung Countertop Microwave with Sensor Cook
Relocating the refrigerator during the redesign allowed the layout to function more efficiently and improved traffic flow through the kitchen.
BeforeA glimpse at some of the original appliances
AfterSome of the black stainless appliances in view
The Tile and Countertops
The surfaces of the kitchen were designed to balance durability with visual impact.
For the countertops, the homeowners selected quartz surfaces sourced through Granite Outlet in Rancho Cordova. Quartz provides a durable, low-maintenance work surface while offering the clean, contemporary look the project called for. The countertops wrap the perimeter cabinetry and extend across the new island, creating generous prep space and reinforcing the island’s role as the kitchen’s central gathering point.
To complement the countertops, the backsplash features an irregular tile from Tilebar installed in a 50% offset pattern. Rather than stopping at the typical backsplash height, the tile was carried from the countertop all the way to the ceiling, creating a sense of vertical scale and giving the range wall a strong architectural presence.
Together, the quartz countertops and full-height backsplash help anchor the kitchen visually while providing surfaces built to withstand daily use.
BeforeThe original tile countertops and backplash
AfterThe updated tile backsplash and countertops
The Fixtures and Lighting
The sink area was upgraded with both function and style in mind.
A Bocchi Contemporary Apron Front Step Rim Workstation Sink (33″) serves as the centerpiece of the kitchen’s work zone. Its integrated workstation features make food preparation and cleanup more efficient.
The sink is paired with a Delta Single Handle Pull-Down Kitchen Faucet with Touch2O® Technology, allowing hands-free operation and modern convenience.
Lighting was designed to balance function with atmosphere.
General illumination comes from new recessed ceiling lights, ensuring the workspace remains bright and practical for everyday cooking.
Additional lighting layers include:
-
Under-cabinet lighting to illuminate the countertops and backsplash
-
Seeded glass matte-black pendant lights above the island
-
Two smaller seeded glass pendants above the sink
Together, these elements create a warm, inviting lighting scheme while providing essential task lighting.
BeforeThe original lighting and sink/fixtures
AfterThe updated sink area with new fixtures and lighting
The Result
What was once a closed-off, outdated kitchen is now a bright and highly functional centerpiece of the home. The new layout improves flow, adds seating, and dramatically increases storage while maintaining a refined and modern aesthetic. With thoughtful material selections and structural improvements, the remodel delivers a kitchen that feels both contemporary and timeless.
The Finished Space






Interested in a kitchen remodel in Carmichael? See our Carmichael kitchen remodeling page →









